全国[切换]

武汉效果图 武汉名仕华府98平三室两厅全包10万,超值!晒混搭风格实景效果图

2020-01-09 13:42

来源:点击:7151

不到100平米的三居室户型,要装修,户型改造,你会怎么做? 更多装修效果图尽在装修乐http://www.zxl.com/

今天,就推荐一套武汉的这种实例,整体以混搭风格为主,灰蓝色的墙面搭配亮黄色的沙发,非常有情调,很有意思。

工程地址:名仕华府

建筑面积:98.57m²

户型结构:三室两厅

装修风格:混搭

工程费用:9.77W(全包)

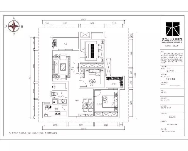
【原始户型图】

武汉效果图 武汉名仕华府98平三室两厅全包10万,超值!晒混搭风格实景效果图

1.入户处开阔,无处安置鞋柜;

2.卫生间较小;

【平面布置图】

武汉效果图 武汉名仕华府98平三室两厅全包10万,超值!晒混搭风格实景效果图

1.靠餐厅墙设计鞋柜展柜,收纳又美观;

2.将厨房和卫生间的墙体重做,增加了卫生间可使用空间;

【客厅】

武汉效果图 武汉名仕华府98平三室两厅全包10万,超值!晒混搭风格实景效果图

武汉名仕华府98平三室两厅,混搭风格效果图

【沙发背景墙】

武汉效果图 武汉名仕华府98平三室两厅全包10万,超值!晒混搭风格实景效果图

武汉名仕华府98平三室两厅,混搭风格效果图

【主卧】

武汉效果图 武汉名仕华府98平三室两厅全包10万,超值!晒混搭风格实景效果图

武汉名仕华府98平三室两厅,混搭风格效果图

【次卧】

武汉效果图 武汉名仕华府98平三室两厅全包10万,超值!晒混搭风格实景效果图

武汉名仕华府98平三室两厅,混搭风格效果图

以上,就是装修乐小编给大家带来的武汉效果图 武汉名仕华府98平三室两厅全包10万,超值!晒混搭风格实景效果图全部内容,希望对大家有所帮助!

标签: 效果图设计

热门文章

装修公司 更多>>

最新文章 更多>>

免费获取报价

省钱 · 省时 · 省心

今日仅剩100个免费名额

您的信息,我们将严格保密请放心填写

热门标签更多>>

免费报价

免费设计

  • 装修计算器

    今天已经有88位业主获取了装修预算

  • 装修预算报价为75625
    • 材料费 :546464
    • 人工费 :46546
    • 设计费 :1456
    • 质检费 :464123
  • 免费装修设计

    已经有14652人选择

  • *声明 :装修乐为您提供专业、透明、准确的装修报价,该项服务绝不产生任何费用,您的隐私将被严格保密!

  • 提交成功!
  • 稍后装修顾问将来电,免费为您提供装修咨询服务

    如有疑问,可扫码添加客服微信咨询